Building Energy Assessments, Solutions, and Technologies (BEAST) Lab
The BEAST Lab is committed to provide assistances to local governments, such as schools, community, and private sectors to reduce their building energy consumptions through proven energy solutions and energy efficiency measures.
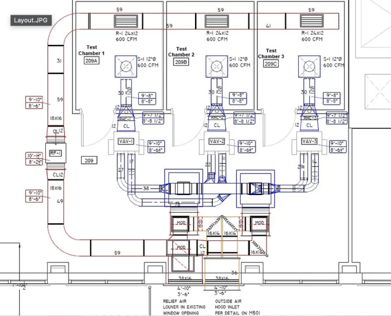
BEAST Lab Overview
The lab contains various types of full scale multi-zone HVAC systems. The HVAC system serves three 8 by 8 ft well-insulated and controlled environmental zones. The HVAC systems are (1) chilled water VAV system, (2) DX VAV system, (3) four-pipe fan coil units, and (4) Variable Refrigerant Flow VRF.
The chilled water VAV system and DX multi-zone VAV systems shares the same air distribution system with three single-duct hot-water reheat VAV boxes, providing cold and warm air to meet the cooling or heating loads in the zones. The VAV system can operate as single or dual duct systems. The heating or cooling loads can be artificially introduced in each zone by any of the system listed above. The chilled water central plant and hot water central plant produce chilled and hot water to terminal units (fan coil units) and the central AHU.
The lab settings is based on most recent developments in building energy system and have the flexibility to address a wide range of research studies. The operation and control of all equipment is achieved through a “real” web-based BACnet building automation system that is integrated with may innovative computational data-enabled energy solution tools.
Lab Services
- Walk-through or Detailed Energy Assessments
- Energy Audits, ASHRAE Audits, Investment Grade Audits (IGA)
- Measurement and Verification (M&V),
- Cost-effective and Customized Energy Solutions
- Commissioning, Retro-Commissioning, New Optimization-Based Recommissioning Procedure
- Building Optimization and Advanced Operating Strategies
- Modern and Advanced Data Analysis
- Computational intelligence Based Optimization Tools
- 3rd Party Energy Consulting, and Design Review
MATLAB Tools
- Pschrometric Calculator
- Heating and Cooling Calculator
- Rooftop Unit Calculator
- Multi-Zone VAVSystem Performance Calculator
- Multi-Zone VAV System Design Calculator
- Chilled Water Cooling Coil Calculator
- Dx Coil
Faculty
Nabil Nassif
Associate Professor, CEAS - Civil & Arch Eng & Const Mgmt
799 Rhodes Hall